Büro in Berlin mieten 250,00 m2 ab 26,00 €/m2 (BNPPRE B9263)

Tauentzienstraße 18

10789 Berlin

  • B9263

    Objekt-ID

  • Provisionsfrei

  • 26.00 €

    Mietpreis pro m2/Monat

  • 7,30 €

    Nebenkosten pro m2/Monat

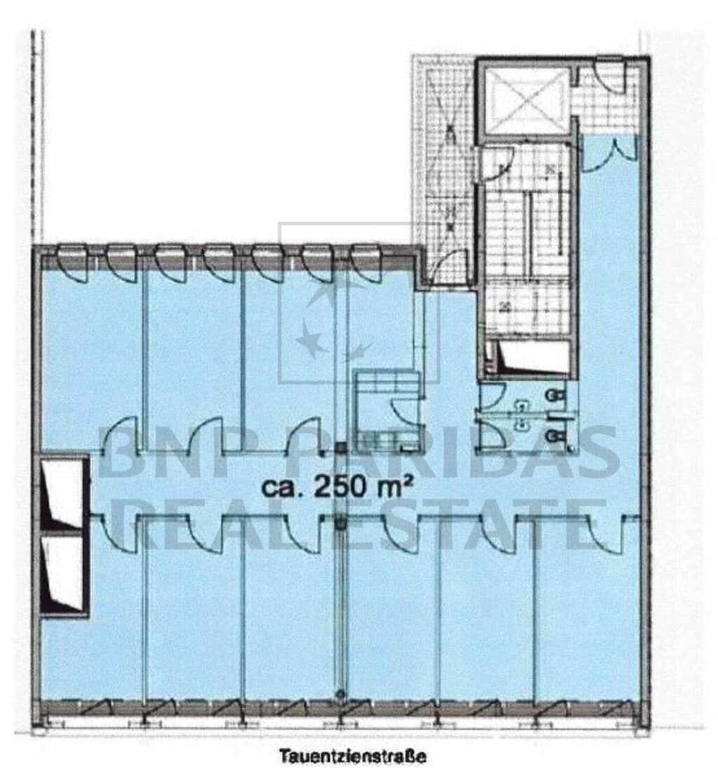
  • 250.00 m2

    Bürofläche

  • Nach Absprache

    Verfügbarkeit

Ihr Ansprechpartner

[object Object]

Frederik zz_Schubert

Tel: +49 30 88465-145

Personenaufzug

Fakten

Büromarktzone1.1 Topcity West
VerkabelungsortHohlraumboden
VerkabelungCat 5
Sonnen-/Blendschutzaußen- und innenliegend
Zugangskontrollevideoüberwacht
Kühlung/ LüftungVollklimatisierung

Objekt

ObjektartBüro-/Geschäftshaus
Baujahr2004

Objektbeschreibung

Die angebotene Bürofläche befindet sich in einem modernen Geschäftshaus in zentraler Innenstadtlage. Großzügige Fensterfronten und helle Räume schaffen ein freundliches Arbeitsumfeld mit weitem Ausblick. Zudem ist die Fläche durch elegante Ganzglaswände in mehrere Bereiche unterteilt und bietet flexible Nutzungsmöglichkeiten für Einzel-, Team- oder Besprechungsräume. Einen hochwertigen Gesamteindruck vermittelt ebenfalls das Gebäude selbst, das mit seiner modernen Glasfassade und starken Sichtbarkeit überzeugt. Insgesamt eignet sich diese Bürofläche ideal für Mieter, die Wert auf ein repräsentatives Umfeld, moderne Optik und flexible Raumgestaltung legen.

Lage

Die Liegenschaft befindet sich im Berliner Stadtbezirk Charlottenburg. In der direkten Umgebung finden sich vielfältige Gastronomie-, Shopping- und Nahversorgungsmöglichkeiten, die eine optimale Infrastruktur gewährleisten. Zusätzlich ist die Anbindung an den öffentlichen Nahverkehr durch die zentrale Lage hervorragend.

Karte

Die Fläche

Gesamtfläche des Objektes:
250,00 m², davon bis zu 250,00 m² verfügbar
Gesamtfläche des Objektes250,00 m², davon 250,00 m² verfügbar

Energieausweis für dieses Objekt

AusweistypBedarfsausweis
Wesentliche EnergieträgerKWK fossil
Endenergiebedarf Strom65,00 kWh/(m²*a)
Endenergiebedarf Wärme232,00 kWh/(m²*a)

Information zur Provision

ProvisionNein

Provisionshinweis

Wir weisen Sie darauf hin, dass Ihnen bei erfolgreichem Abschluss eines Mietvertrages eine Provision berechnet wird - es sei denn, das Objekt wurde Ihnen vorab ausdrücklich provisionsfrei angeboten. Bitte beachten Sie unsere AGB (https://www.realestate.bnpparibas.de/agb/bnppre-gmbh).