Büro in Köln mieten 377,00 m2 ab 22,00 €/m2 (BNPPRE K11282)

Repräsentative & vollausgestattete Büros in denkmalgeschützter Liegenschaft!

50668 Köln

  • K11282

    Objekt-ID

  • Provisionsfrei

  • 22.00 €

    Mietpreis pro m2/Monat

  • 377.00 m2

    Bürofläche

  • 377.00 m2

    Teilbar ab

  • nach Vereinbarung

    Verfügbarkeit

Ihr Ansprechpartner

[object Object]

Fabian Ehrhardt

Tel: +49 221 934633-18

Barrierefrei
Personenaufzug

Fakten

Büromarktzone1.1 City
VerkabelungCat 7
Kühlung/ Lüftungvorhanden
Preis pro Parkfläche135,00 €/Monat

Objekt

ObjektartBürohaus
Baujahr1937
Deckenhöhe3,70 m

Objektbeschreibung

Das Haus A der heutigen "Rheinzeit" wurde 1937 errichtet und steht seit 1991 unter Denkmalschutz. Dabei handelt es sich um ein viergeschossiges Büro- und Verwaltungsgebäude mit zwei Untergeschossen, einem Parkdeck auf Straßenebene sowie einer Tiefgarage im Untergeschoss. Von der Clever Straße aus erreichen Sie über einen kleinen Vorplatz den Haupteingang des Gebäudes mit seinem repräsentativen, denkmalgeschützten Foyer. Sowohl der Fußbodenbelag als auch das Geländer des offenen Treppenhauses bestehen aus massivem Marmor. Ein Personenaufzug je Eingang führt Sie in die oberen Etagen. Die Büroflächen wurden trendgerecht mit einem wesentlichen Open-Space-Bereich inklusive schallisolierter Rückzugsmöglichkeiten ausgebaut. Einzig das Mobiliar muss mieterseitig erbracht werden, wobei vollausgestattete Teeküchen Mietbestandteil sind. Als Mietlaufzeiten sind fünf oder nach Absprache drei Jahre möglich.

Lage

Die Immobilie befindet sich in der linksrheinischen Büromarktzone City, diese wird einerseits durch den Rhein und andererseits durch den Grüngürtel begrenzt. Durch den charakteristischen Aufbau der Stadt durch die Ringe und die sternförmigen Ausfallstraßen sind einzelne Stadtviertel entstanden, wie das Banken- und Versicherungsviertel sowie das Belgische Viertel. Bedeutende Mikrostandorte sind die Bereiche Kölner Dom, Hauptbahnhof, Neumarkt, MediaPark, der Ring und das Umfeld der Ringe. Die Anbindung an den ÖPNV ist in der City durch zahlreiche U- und Straßenbahnlinien, S-Bahnhöfe sowie Buslinien als gut zu bezeichnen. Der Kölner Autobahnring kann zügig über diverse Ausfallstraßen sowie die verschiedenen Rheinbrücken angefahren werden.
Fußweg zu öffentlichen Verkehrsmitteln1 Minuten
Fahrtzeit zum nächsten Hauptbahnhof10 Minuten
Fahrtzeit zur nächsten Autobahn10 Minuten
Fahrzeit zum nächsten Flughafen15 Minuten

Karte

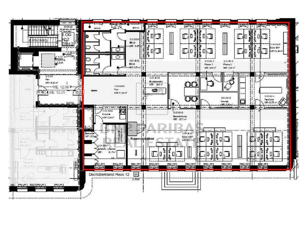
Die Fläche

Gesamtfläche des Objektes:
1.465,00 m², davon bis zu 377,00 m² verfügbar
Gesamtfläche des Objektes1.465,00 m², davon 377,00 m² verfügbar

Energieausweis für dieses Objekt

AusweistypVerbrauchsausweis
Wesentliche EnergieträgerFernwärme
Endenergieverbrauch Strom33,00 kWh/(m²*a)
Endenergieverbrauch Wärme114,00 kWh/(m²*a)

Information zur Provision

ProvisionNein
ProvisionshöheProvisionsfrei, siehe Sonstiges

Provisionshinweis

Wir weisen Sie darauf hin, dass Ihnen bei erfolgreichem Abschluss eines Mietvertrages eine Provision berechnet wird - es sei denn, das Objekt wurde Ihnen vorab ausdrücklich provisionsfrei angeboten. Bitte beachten Sie unsere AGB (https://www.realestate.bnpparibas.de/agb/bnppre-gmbh).