Büro in Köln mieten 113,00 m2 ab 17,60 €/m2 (BNPPRE K11495)

Moderne Büroflächen mit Glasarchitektur in Köln Lövenich

50859 Köln

  • K11495

    Objekt-ID

  • 17.60 €

    Mietpreis pro m2/Monat

  • 1,60 €

    Nebenkosten pro m2/Monat

  • 113.00 m2

    Bürofläche

  • 113.00 m2

    Teilbar ab

  • kurzfristig

    Verfügbarkeit

Ihr Ansprechpartner

[object Object]

Fabian Ehrhardt

Tel: +49 221 934633-18

Barrierefrei
Personenaufzug

Fakten

Büromarktzone3.3 Köln West
VerkabelungsortBodentank
Verkabelungvorhanden
Sonnen-/Blendschutzaußenliegend elektrisch
ZugangskontrolleGegensprechanlage
Kühlung/ Lüftungöffenbare Fenster
Anzahl Parkflächen2 Stück
Preis pro Parkfläche75,00 €/Monat

Objekt

ObjektartBüro-/Geschäftshaus
Deckenhöhe2,70 m

Objektbeschreibung

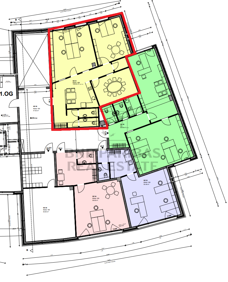
Die angebotenen Büroflächen befinden sich im 1. Obergeschoss des Gebäudes und überzeugen durch eine angenehme, ruhige Arbeitsatmosphäre. Die modern gestalteten Büros verteilen sich auf 3 Arbeitsräume auf. Die großzügig gestaltete Teeküche unterstützt eine offene und zugleich strukturierte Arbeitsumgebung und fügt sich harmonisch in das Bürokonzept ein. Die Fläche verfügt über eine Teeküche sowie separat getrennte WC-Einheiten und bietet damit einen hohen Komfort für Mitarbeiter und Besucher. Zusätzlich können Stellplätze vor und hinter dem Gebäude angemietet werden. Abgerundet wird die Immobilie durch eine Archivfläche von ca. 6 m² im Keller, die zusätzlichen Stauraum bietet. Ein idealer Standort für Unternehmen, die Wert auf moderne Ausstattung, Funktionalität und eine angenehme Arbeitsumgebung legen.

Lage

Die Büromarktzone Rodenkirchen ist der südlichste linksrheinische Bereich Kölns. Charakteristische Bürostandorte sind die Konrad-Adenauer-Straße, die Industriestraße und die Emil-Hoffmann-Straße sowie in Teilbereichen die Stadtteilzentren Rodenkirchen und Sürth. Der Standort entwickelte sich in den letzten Jahrzehnten durch die Etablierung einiger, moderner Büroparks zu einem auch von Dienstleistungsunternehmen gefragten Firmensitz. In direkter Rheinnähe befinden sich beliebte und hochwertige Wohnlagen. Die Straßenbahn bietet einen guten Anschluss an den ÖPNV. Rodenkirchen hat einen guten Anschluss an das Autobahnkreuz Köln-Süd.
Fußweg zu öffentlichen Verkehrsmitteln2 Minuten
Fahrtzeit zum nächsten Hauptbahnhof23 Minuten
Fahrtzeit zur nächsten Autobahn9 Minuten
Fahrzeit zum nächsten Flughafen24 Minuten

Karte

Die Fläche

Gesamtfläche des Objektes:
537,00 m², davon bis zu 113,00 m² verfügbar
Gesamtfläche des Objektes537,00 m², davon 113,00 m² verfügbar

Information zur Provision

ProvisionJa
ProvisionshöheProvisionspflichtig, siehe Sonstiges

Provisionshinweis

Wir weisen Sie darauf hin, dass Ihnen bei erfolgreichem Abschluss eines Mietvertrages eine Provision berechnet wird - es sei denn, das Objekt wurde Ihnen vorab ausdrücklich provisionsfrei angeboten. Bitte beachten Sie unsere AGB (https://www.realestate.bnpparibas.de/agb/bnppre-gmbh).