Büro in Köln mieten 203,00 m2 ab 19,50 €/m2 (BNPPRE K11781)

Moderne Bürofläche nähe Dom/ Hauptbahnhof

50668 Köln

  • K11781

    Objekt-ID

  • 19.50 €

    Mietpreis pro m2/Monat

  • 4,40 €

    Nebenkosten pro m2/Monat

  • 203.00 m2

    Bürofläche

  • 203.00 m2

    Teilbar ab

  • kurzfristig

    Verfügbarkeit

Ihr Ansprechpartner

[object Object]

Fabian Ehrhardt

Tel: +49 221 934633-18

Barrierefrei

Fakten

Büromarktzone1.1 City
VerkabelungsortBodentank
VerkabelungCat 7
Anzahl Parkflächen1 Stück
Preis pro Parkfläche100,00 €/Monat

Objekt

ObjektartBürohaus
Baujahr1995
Modernisierung2014

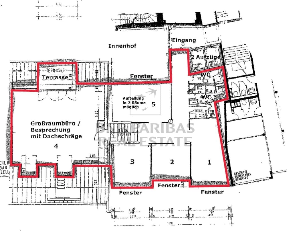
Objektbeschreibung

Die attraktive Bürofläche befindet sich in einem 1995 erbauten und in 2014 saniertem Bürogebäude in direkter Nähe zum Hauptbahnhof. Die Fassade des Gebäudes wurde energetisch und optisch saniert. Die Fläche befindet sich in einem renovierungsbedürftigen Zustand und wird nach Mieterwunsch ausgebaut. Der Hauseingang befindet sich direkt am Ursulaplatz und wurde ebenfalls modernisiert. Dadurch ist ein repräsentativer Büroeingang mit zwei modernen Aufzügen zu den einzelnen Etagen entstanden. Der Zugang zur Bürofläche ist ebenerdig und somit auch rollstuhlgerecht.

Lage

Die Immobilie befindet sich in der linksrheinischen Büromarktzone City, diese wird einerseits durch den Rhein und andererseits durch den Grüngürtel begrenzt. Durch den charakteristischen Aufbau der Stadt durch die Ringe und die sternförmigen Ausfallstraßen sind einzelne Stadtviertel entstanden, wie das Banken- und Versicherungsviertel sowie das Belgische Viertel. Bedeutende Mikrostandorte sind die Bereiche Kölner Dom, Hauptbahnhof, Neumarkt, MediaPark, der Ring und das Umfeld der Ringe. Die Anbindung an den ÖPNV ist in der City durch zahlreiche U- und Straßenbahnlinien, S-Bahnhöfe sowie Buslinien als gut zu bezeichnen. Der Kölner Autobahnring kann zügig über diverse Ausfallstraßen sowie die verschiedenen Rheinbrücken angefahren werden.
Fußweg zu öffentlichen Verkehrsmitteln3 Minuten
Fahrtzeit zum nächsten Hauptbahnhof4 Minuten
Fahrtzeit zur nächsten Autobahn10 Minuten
Fahrzeit zum nächsten Flughafen20 Minuten

Karte

Die Fläche

Gesamtfläche des Objektes:
203,00 m², davon bis zu 203,00 m² verfügbar
Gesamtfläche des Objektes203,00 m², davon 203,00 m² verfügbar

Information zur Provision

ProvisionJa
ProvisionshöheProvisionspflichtig, siehe Sonstiges

Provisionshinweis

Wir weisen Sie darauf hin, dass Ihnen bei erfolgreichem Abschluss eines Mietvertrages eine Provision berechnet wird - es sei denn, das Objekt wurde Ihnen vorab ausdrücklich provisionsfrei angeboten. Bitte beachten Sie unsere AGB (https://www.realestate.bnpparibas.de/agb/bnppre-gmbh).