Büro in Köln mieten 948,00 m2 ab 25,00 €/m2 (BNPPRE K3959)

Erstbezug! Büroflächen in unterschiedlichen Größen in direkter Domnähe!

50667 Köln

  • K3959

    Objekt-ID

  • 25.00 €

    Mietpreis pro m2/Monat

  • 4,50 €

    Nebenkosten pro m2/Monat

  • 948.00 m2

    Bürofläche

  • 50.00 m2

    Teilbar ab

  • Q1 2027

    Verfügbarkeit

Ihr Ansprechpartner

[object Object]

Fabian Ehrhardt

Tel: +49 221 934633-18

Personenaufzug

Fakten

Büromarktzone1.1 City
Verkabelungvorhanden
Kühlung/ Lüftungvorhanden

Objekt

ObjektartBüro-/Wohn-/Geschäftshaus

Objektbeschreibung

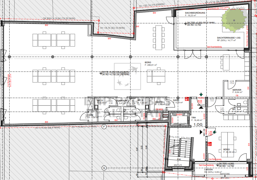
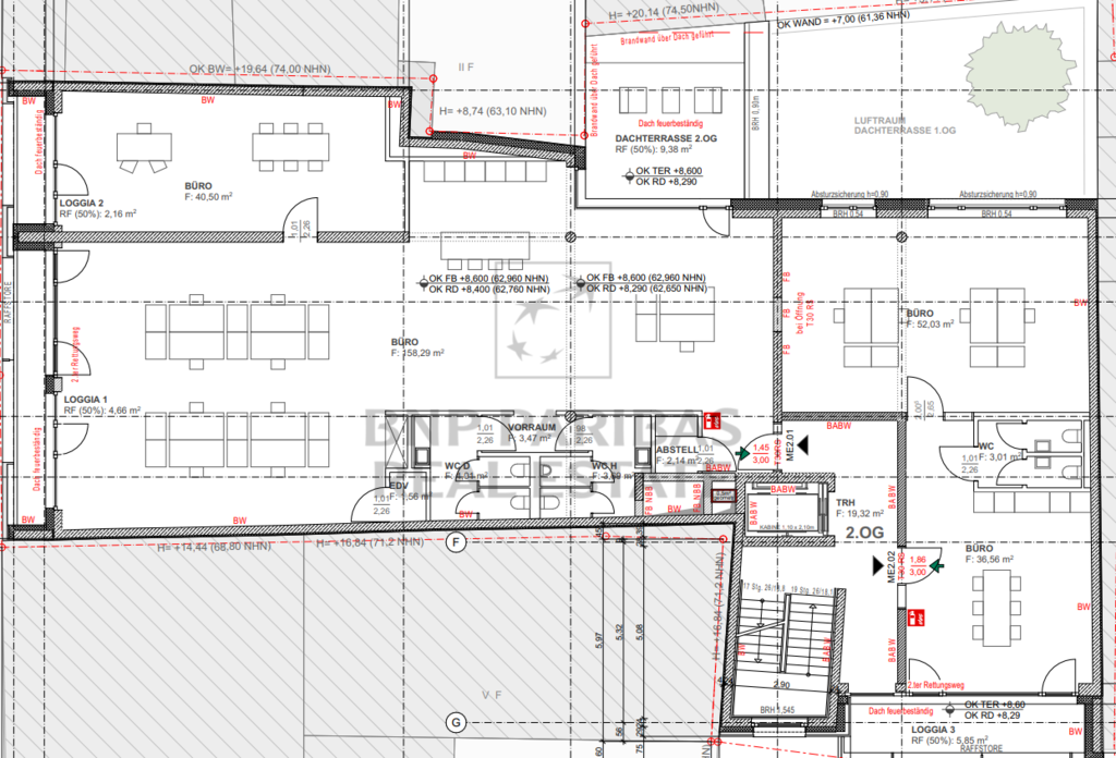
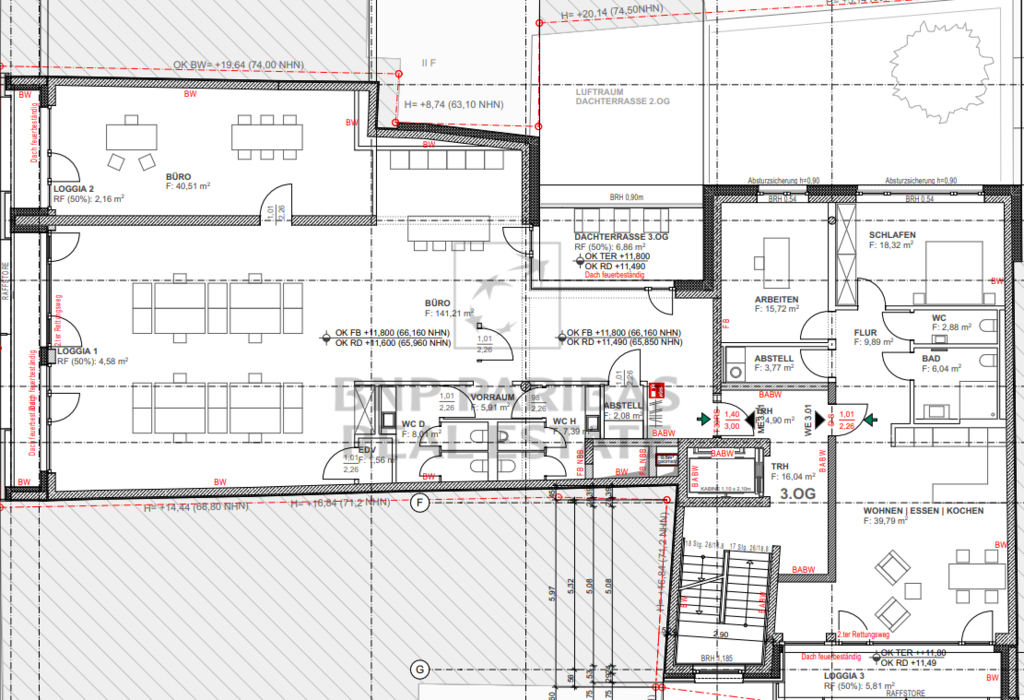
Das gehobene Wohn- und Geschäftshaus wird auf einer der meist frequentiertesten Straßen Kölns entstehen. Es handelt sich hierbei um ein Multi-Tenant Gebäude, bei welchem im Erdgeschoss eine Ladenfläche mit knapp 400m² vorhandensein wird. In den ersten drei Obergeschossen des Objekts werden zukünftig Büroflächen von insgesamt 948m² zur Verfügung stehen. Bei dem 4, 5 und 6.OG handelt es sich um exklusive Wohneinheiten. Die modernen Büroflächen werden mit einem Bürogeeignetem Schlingenteepich, welcher als Teppichfliesen verlegt wird ausgestattet sein .Als Trennung zwischen den einzelnen Büroräumen sind doppelt geplankte Ständerwände als Gipskarton mit der Oberflächenqualität Q3 und einer Schallschützfüllung aus Mineralwolle vorgesehen. Die einzelnen Etagen werden jeweils über eine Loggia und die Dachterrasse verfügen und gemeinschaftlich genutzt werden. Ein Personenaufzug sowie ein Fahrradkeller werden ebenfalls vorhanden sein.

Lage

Die Immobilie befindet sich in der linksrheinischen Büromarktzone City, diese wird einerseits durch den Rhein und andererseits durch den Grüngürtel begrenzt. Durch den charakteristischen Aufbau der Stadt durch die Ringe und die sternförmigen Ausfallstraßen sind einzelne Stadtviertel entstanden, wie das Banken- und Versicherungsviertel sowie das Belgische Viertel. Bedeutende Mikrostandorte sind die Bereiche Kölner Dom, Hauptbahnhof, Neumarkt, MediaPark, der Ring und das Umfeld der Ringe. Die Anbindung an den ÖPNV ist in der City durch zahlreiche U- und Straßenbahnlinien, S-Bahnhöfe sowie Buslinien als gut zu bezeichnen. Der Kölner Autobahnring kann zügig über diverse Ausfallstraßen sowie die verschiedenen Rheinbrücken angefahren werden.
Fußweg zu öffentlichen Verkehrsmitteln5 Minuten
Fahrtzeit zum nächsten Hauptbahnhof2 Minuten
Fahrtzeit zur nächsten Autobahn5 Minuten
Fahrzeit zum nächsten Flughafen15 Minuten

Karte

Die Fläche

Gesamtfläche des Objektes:
1.388,00 m², davon bis zu 948,00 m² verfügbar
Gesamtfläche des Objektes1.388,00 m², davon 948,00 m² verfügbar

Information zur Provision

ProvisionJa
ProvisionshöheProvisionspflichtig, Siehe Reiter Sonstiges

Provisionshinweis

Wir weisen Sie darauf hin, dass Ihnen bei erfolgreichem Abschluss eines Mietvertrages eine Provision berechnet wird - es sei denn, das Objekt wurde Ihnen vorab ausdrücklich provisionsfrei angeboten. Bitte beachten Sie unsere AGB (https://www.realestate.bnpparibas.de/agb/bnppre-gmbh).