Büro in Köln mieten 193,00 m2 ab 18,50 €/m2 (BNPPRE K3977)

Büro- und Geschäftshaus in markanter Ecklage in bester Citylage

50667 Köln

  • K3977

    Objekt-ID

  • 18.50 €

    Mietpreis pro m2/Monat

  • 3,70 €

    Nebenkosten pro m2/Monat

  • 193.00 m2

    Bürofläche

  • 193.00 m2

    Teilbar ab

  • kurzfristig

    Verfügbarkeit

Ihr Ansprechpartner

[object Object]

Hannah Ilayda Bozdag

Tel: +49 221 934633-45

Personenaufzug

Fakten

Büromarktzone1.1 City
VerkabelungsortFußboden-Kabelkanäle
VerkabelungCat 5
Sonnen-/Blendschutznicht vorhanden
Kühlung/ LüftungKeine

Objekt

ObjektartWohn-/Geschäftshaus
Baujahr1954

Objektbeschreibung

Das 5-geschossige Büro- und Geschäftshaus verfügt über eine weiße Putzfassade mit schwarzen Fensterelementen. Die zentrale Bürofläche befindet sich in einem Eckgrundstücksobjekt. Renovierungsarbeiten sind Ende Januar 2026 abgeschlossen. Es befindet sich eine KIKO Filiale im EG, die professionelles Make-up verkauft.

Lage

Das in exponierter Ecklage gelegene Büro- und Geschäftshaus befindet sich in absoluter 1a-Citylage von Köln. In wenigen Gehminuten erreicht man den Dom und das historische Rathaus. Die Immobilie befindet sich in der linksrheinischen Büromarktzone City, diese wird einerseits durch den Rhein und andererseits durch den Grüngürtel begrenzt. Durch den charakteristischen Aufbau der Stadt durch die Ringe und die sternförmigen Ausfallstraßen sind einzelne Stadtviertel entstanden, wie das Banken- und Versicherungsviertel sowie das Belgische Viertel. Bedeutende Mikrostandorte sind die Bereiche Kölner Dom, Hauptbahnhof, Neumarkt, MediaPark, der Ring und das Umfeld der Ringe. Die Anbindung an den ÖPNV ist in der City durch zahlreiche U- und Straßenbahnlinien, S-Bahnhöfe sowie Buslinien als gut zu bezeichnen. Der Kölner Autobahnring kann zügig über diverse Ausfallstraßen sowie die verschiedenen Rheinbrücken angefahren werden. Die zentrale Lage bietet eine Vielzahl von Geschäften für den täglichen Bedarf. Banken, Postämter, Museen und Hotels befinden sich in fußläufiger Entfernung.
Fußweg zu öffentlichen Verkehrsmitteln2 Minuten
Fahrtzeit zum nächsten Hauptbahnhof2 Minuten
Fahrtzeit zur nächsten Autobahn10 Minuten
Fahrzeit zum nächsten Flughafen20 Minuten

Karte

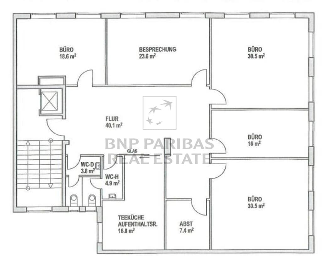
Die Fläche

Gesamtfläche des Objektes:
193,00 m², davon bis zu 193,00 m² verfügbar
Gesamtfläche des Objektes193,00 m², davon 193,00 m² verfügbar

Energieausweis für dieses Objekt

AusweistypBedarfsausweis
Wesentliche EnergieträgerFern-/Nahwärme
Endenergiebedarf Strom52,00 kWh/(m²*a)
Endenergiebedarf Wärme309,00 kWh/(m²*a)

Information zur Provision

ProvisionJa
ProvisionshöheProvisionspflichtig, siehe Sonstiges

Provisionshinweis

Wir weisen Sie darauf hin, dass Ihnen bei erfolgreichem Abschluss eines Mietvertrages eine Provision berechnet wird - es sei denn, das Objekt wurde Ihnen vorab ausdrücklich provisionsfrei angeboten. Bitte beachten Sie unsere AGB (https://www.realestate.bnpparibas.de/agb/bnppre-gmbh).