Büro in Köln mieten 2.237,00 m2 ab 8,00 €/m2 (BNPPRE K4624)

Flexible Büroflächen in Köln-Sürth – kurze Laufzeit möglich

50999 Köln

  • K4624

    Objekt-ID

  • 8.00 €

    Mietpreis pro m2/Monat

  • 3,00 €

    Nebenkosten pro m2/Monat

  • 2,237.00 m2

    Bürofläche

  • 2,237.00 m2

    Teilbar ab

  • Nach Absprache

    Verfügbarkeit

Ihr Ansprechpartner

[object Object]

Fabian Ehrhardt

Tel: +49 221 934633-18

Fakten

Büromarktzone3.4 Köln Süd
VerkabelungsortFensterbank-Kabelkanäle
VerkabelungCat 5
Sonnen-/Blendschutzaußenliegend elektrisch
Kühlung/ LüftungTeilklimatisierung

Objekt

ObjektartBürohaus
Baujahr1994
Deckenhöhe2,67 m

Objektbeschreibung

Bei dem Objekt handelt es sich um ein gepflegtes Bürogebäude mit funktionalen und gut nutzbaren Büroflächen in ruhiger, dennoch verkehrsgünstiger Lage im Kölner Süden. Die Büroflächen eignen sich ideal für Unternehmen mit temporärem Flächenbedarf, Projektteams, Ausweichflächen oder Übergangslösungen. Die Liegenschaft bietet eine klassische Bürostruktur mit guter Belichtung, zeitgemäßer Ausstattung und einer angenehmen Arbeitsatmosphäre. Die Lage überzeugt durch eine gute Anbindung an das überregionale Verkehrsnetz sowie eine solide Infrastruktur im direkten Umfeld. Pkw-Stellplätze befinden sich am Objekt bzw. im näheren Umfeld. Insgesamt bietet das Objekt eine flexible, unkomplizierte und wirtschaftliche Lösung für Unternehmen, die zeitlich begrenzt Büroflächen im Kölner Süden suchen.

Lage

Das Bürogebäude befindet sich im Kölner Stadtteil Sürth in ca. 600 m Entfernung zum Rheinufer. Die Nähe zum Autobahnkreuz Köln-Süd (A 555), das an den Kölner Autobahnring angeschlossen ist sowie die nahgelegene ÖPNV-Haltestellen bieten eine verkehrstechnisch gute Erschließung. Zahlreiche Supermärkte und Restaurants liegen in fußläufiger Entfernung. Die Büromarktzone Rodenkirchen ist der südlichste linksrheinische Bereich Kölns. Charakteristische Bürostandorte sind die Konrad-Adenauer-Straße, die Industriestraße und die Emil-Hoffmann-Straße sowie in Teilbereichen die Stadtteilzentren Rodenkirchen und Sürth. Der Standort entwickelte sich in den letzten Jahrzehnten durch die Etablierung einiger, moderner Büroparks zu einem auch von Dienstleistungsunternehmen gefragten Firmensitz. In direkter Rheinnähe befinden sich beliebte und hochwertige Wohnlagen. Die Straßenbahn bietet einen guten Anschluss an den ÖPNV. Rodenkirchen hat einen guten Anschluss an das Autobahnkreuz Köln-Süd.

Karte

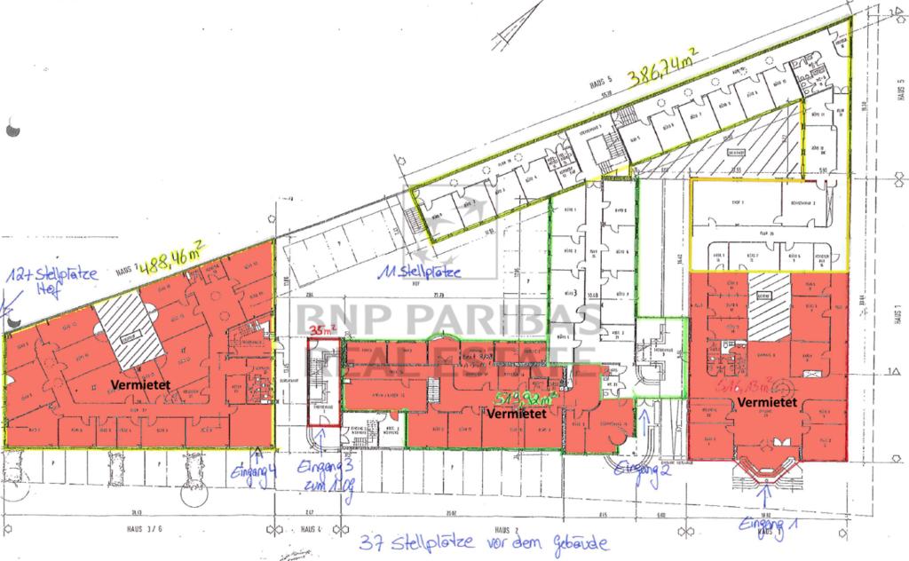
Die Fläche

Gesamtfläche des Objektes:
6.566,00 m², davon bis zu 2.237,00 m² verfügbar
Gesamtfläche des Objektes6.566,00 m², davon 2.237,00 m² verfügbar

Information zur Provision

ProvisionJa
ProvisionshöheProvisionspflichtig, siehe Sonstiges

Provisionshinweis

Wir weisen Sie darauf hin, dass Ihnen bei erfolgreichem Abschluss eines Mietvertrages eine Provision berechnet wird - es sei denn, das Objekt wurde Ihnen vorab ausdrücklich provisionsfrei angeboten. Bitte beachten Sie unsere AGB (https://www.realestate.bnpparibas.de/agb/bnppre-gmbh).