Büro in Köln mieten 640,00 m2 ab 18,00 €/m2 (BNPPRE K712)

Außergewöhnliches Büroloft im Erft- Haus!

50670 Köln

  • K712

    Objekt-ID

  • 18.00 €

    Mietpreis pro m2/Monat

  • 3,28 €

    Nebenkosten pro m2/Monat

  • 640.00 m2

    Bürofläche

  • 640.00 m2

    Teilbar ab

  • nach Vereinbarung

    Verfügbarkeit

Ihr Ansprechpartner

[object Object]

Fabian Ehrhardt

Tel: +49 221 934633-18

Personenaufzug

Fakten

Büromarktzone1.1 City
Verkabelungsortüber Decke
Verkabelungvorhanden
Kühlung/ LüftungSplitgerät
Anzahl Parkflächen3 Stück
Preis pro Parkfläche180,00 €/Monat

Objekt

ObjektartBüro-/Geschäftshaus
Deckenhöhe5,00 m

Objektbeschreibung

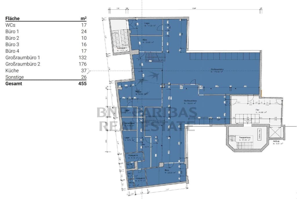
Das Erft-Haus ist eine hochwertige gemischtgenutzte Immobilie im Industriestil, dessen Vorderhaus zu Wohnzwecken und das Hinterhaus für gewerbliche Zwecke genutzt wird. Über die einladende Gebäudezufahrt gelangen Mieter sowohl zu Fuß zum Hinterhaus als auch mit dem Auto in die Tiefgarage. Im 3. Obergeschoss wird eine außergewöhnliche Loft-Bürofläche frei, welche vor Neuvermietung umfangreich modernisiert wird. Die Einheit besticht durch raumhohe Stahlfenster, sichtbare Dachträger und einen Epoxidharzboden, welche der Fläche einen loftigen Charakter verleihen. Das Büro ist in zwei große, offene Flächen mit jeweils eigenem Zugang und Empore aufgeteilt. Sie verfügt über eine Sanitäreinheit, zwei Besprechungsräume, vier Einzelbüros sowie verschiedene Einbauten des aktuellen Mieters, welche gerne gegen Abschlag übernommen werden können.

Lage

Die Immobilie befindet sich im Herzen des Agnesviertels, einem der begehrtesten Stadtteile Kölns. Mit seiner zentralen Lage, den lebendigen Straßen und der Nähe zum Agnesplatz bietet das Viertel eine hervorragende Mischung aus urbanem Leben und idyllischen Rückzugsorten. Hier genießen Sie kurze Wege zu Cafés, Restaurants und Geschäften und erleben das besondere Flair dieses angesagten Kölner Viertels. Die Immobilie befindet sich in der linksrheinischen Büromarktzone City, diese wird einerseits durch den Rhein und andererseits durch den Grüngürtel begrenzt. Durch den charakteristischen Aufbau der Stadt durch die Ringe und die sternförmigen Ausfallstraßen sind einzelne Stadtviertel entstanden, wie das Banken- und Versicherungsviertel sowie das Belgische Viertel. Bedeutende Mikrostandorte sind die Bereiche Kölner Dom, Hauptbahnhof, Neumarkt, MediaPark, der Ring und das Umfeld der Ringe. Die Anbindung an den ÖPNV ist in der City durch zahlreiche U- und Straßenbahnlinien, S-Bahnhöfe sowie Buslinien als gut zu bezeichnen. Der Kölner Autobahnring kann zügig über diverse Ausfallstraßen sowie die verschiedenen Rheinbrücken angefahren werden.
Fußweg zu öffentlichen Verkehrsmitteln2 Minuten
Fahrtzeit zum nächsten Hauptbahnhof8 Minuten
Fahrtzeit zur nächsten Autobahn10 Minuten
Fahrzeit zum nächsten Flughafen15 Minuten

Karte

Die Fläche

Gesamtfläche des Objektes:
862,00 m², davon bis zu 640,00 m² verfügbar
Gesamtfläche des Objektes862,00 m², davon 640,00 m² verfügbar

Energieausweis für dieses Objekt

Zum Zeitpunkt der Erstellung des Exposés lag uns der entsprechende Energieausweis nicht vor. Nach § 16 EnEV 2014 ist der Verkäufer/Vermieter jedoch dazu verpflichtet, dem Kauf-/Mietinteressenten den Energieausweis oder eine Kopie davon bei der Besichtigung vorzulegen und bei Abschluss des Vertrages im Original/Kopie zu übergeben.

Information zur Provision

ProvisionJa
ProvisionshöheProvisionspflichtig, siehe Sonstiges

Provisionshinweis

Wir weisen Sie darauf hin, dass Ihnen bei erfolgreichem Abschluss eines Mietvertrages eine Provision berechnet wird - es sei denn, das Objekt wurde Ihnen vorab ausdrücklich provisionsfrei angeboten. Bitte beachten Sie unsere AGB (https://www.realestate.bnpparibas.de/agb/bnppre-gmbh).