Büro in Köln mieten 2.105,00 m2 (BNPPRE K753)

Schulungsfläche vis à vis zum Gürzenich

50667 Köln

  • K753

    Objekt-ID

  • Preis auf Anfrage

  • 3,60 €

    Nebenkosten pro m2/Monat

  • 2,105.00 m2

    Bürofläche

  • 589.00 m2

    Teilbar ab

  • kurzfristig nach Vereinbarung

    Verfügbarkeit

Ihr Ansprechpartner

[object Object]

Fabian Ehrhardt

Tel: +49 221 934633-18

Personenaufzug

Fakten

Büromarktzone1.1 City
VerkabelungsortHohlraum-Doppelboden
VerkabelungCat 6
Sonnen-/Blendschutzinnenliegend manuell
Kühlung/ LüftungBe-/Entlüftung ohne Kühlung

Objekt

ObjektartBürohaus
Modernisierung1999
Achsmaß1,25 m

Objektbeschreibung

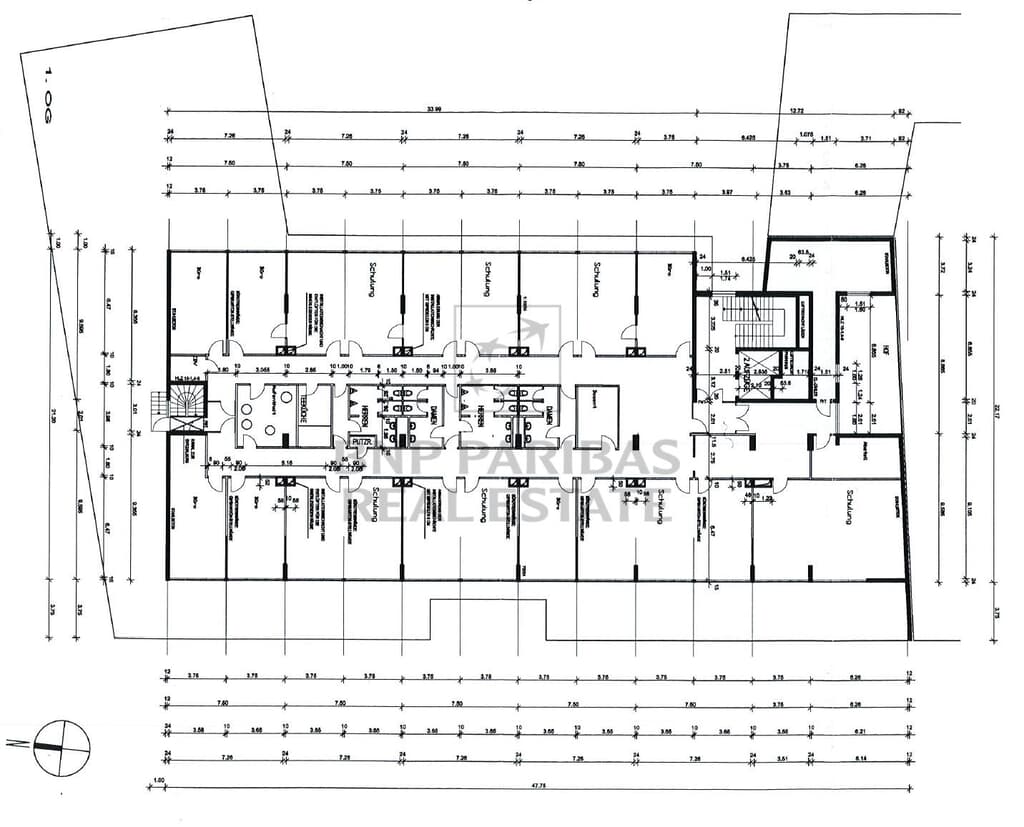
Der Eingang zu dem 5-geschossigen Büro- und Geschäftshaus befindet sich in der Gürzenich-Passage. Der Gebäudekomplex erhielt 1999 eine komplett neue hellgraue Außenfassade inkl. Fensteranlagen. Die Mieteinheit im 1. OG ist eine Schulungsfläche mit drei Fluchtwegen, welche über Treppenhaus, Personenaufzug oder Lastenaufzug erschlossen werden kann. Derzeit ist die Mieteinheit mit einer Einzelhandelsfläche im EG über das allgemeine Treppenhaus verbunden. Eine Trennung ist jedoch möglich, sodass beide Einheiten einzeln vermietet werden. Stellplätze befinden sich in einer öffentlichen Tiefgarage, welche direkt an das Haus angeschlossen ist.

Lage

Die hier angebotenen Büroflächen liegen in bester Innenstadtlage. In wenigen Fußminuten erreicht man den Dom und den Hauptbahnhof. Das historische Rathaus sowie die bekannten Einkaufsstraßen Hohe Straße und Schildergasse bilden das direkte Umfeld und bieten eine Vielfalt an Einkaufsmöglichkeiten und Gastronomie. Die Immobilie befindet sich in der linksrheinischen Büromarktzone City, diese wird einerseits durch den Rhein und andererseits durch den Grüngürtel begrenzt. Durch den charakteristischen Aufbau der Stadt durch die Ringe und die sternförmigen Ausfallstraßen sind einzelne Stadtviertel entstanden, wie das Banken- und Versicherungsviertel sowie das Belgische Viertel. Bedeutende Mikrostandorte sind die Bereiche Kölner Dom, Hauptbahnhof, Neumarkt, MediaPark, der Ring und das Umfeld der Ringe. Die Anbindung an den ÖPNV ist in der City durch zahlreiche U- und Straßenbahnlinien, S-Bahnhöfe sowie Buslinien als gut zu bezeichnen. Der Kölner Autobahnring kann zügig über diverse Ausfallstraßen sowie die verschiedenen Rheinbrücken angefahren werden.
Fußweg zu öffentlichen Verkehrsmitteln3 Minuten
Fahrtzeit zum nächsten Hauptbahnhof3 Minuten
Fahrtzeit zur nächsten Autobahn5 Minuten
Fahrzeit zum nächsten Flughafen15 Minuten

Karte

Die Fläche

Gesamtfläche des Objektes:
3.575,00 m², davon bis zu 2.105,00 m² verfügbar
Gesamtfläche des Objektes3.575,00 m², davon 2.105,00 m² verfügbar

Energieausweis für dieses Objekt

Zum Zeitpunkt der Erstellung des Exposés lag uns der entsprechende Energieausweis nicht vor. Nach § 16 EnEV 2014 ist der Verkäufer/Vermieter jedoch dazu verpflichtet, dem Kauf-/Mietinteressenten den Energieausweis oder eine Kopie davon bei der Besichtigung vorzulegen und bei Abschluss des Vertrages im Original/Kopie zu übergeben.

Information zur Provision

ProvisionJa
Provisionshöhesiehe Sonstiges

Provisionshinweis

Wir weisen Sie darauf hin, dass Ihnen bei erfolgreichem Abschluss eines Mietvertrages eine Provision berechnet wird - es sei denn, das Objekt wurde Ihnen vorab ausdrücklich provisionsfrei angeboten. Bitte beachten Sie unsere AGB (https://www.realestate.bnpparibas.de/agb/bnppre-gmbh).