Büro in Leipzig mieten 162,92 m2 ab 13,00 €/m2 (BNPPRE L1077)

Einladende, helle Büroräume mit ÖPNV-Anbindung direkt vor der Tür!

04107 Leipzig

  • L1077

    Objekt-ID

  • Provisionsfrei

  • 13.00 €

    Mietpreis pro m2/Monat

  • 162.92 m2

    Bürofläche

  • 162.92 m2

    Teilbar ab

  • Nach Absprache

    Verfügbarkeit

Ihr Ansprechpartner

[object Object]

Laura Krämer

Tel: +49 341 71188-25

Fakten

Büromarktzone2.4 Südvorstadt

Objekt

ObjektartBüro-/Wohn-/Geschäftshaus
Baujahr1995

Objektbeschreibung

Die Fassade des sanierten Gebäudes hält sich an die Tradition der innerstädtischen Bauten der Stadt Leipzig mit rötlich-gelbem Sandstein im Erdgeschoss und ersten Obergeschoss. Mittels einer durchgehenden Verglasung erhält der untere Teil des Hauses den Charakter einer Sockelzone über zwei Etagen. Der obere Teil des Hauses wird durch leicht gelben Putz und einer Dacheindeckung mit roten Biberschwänzen geprägt. Die großzügige Wirkung der Fassade wird weiterhin durch die repräsentative Treppenhausverglasung und den Erkervorbau im Kreuzungsbereich erreicht.

Lage

Die Karl-Liebknecht-Straße entwickelt sich in der Nähe des Stadtkerns der Stadt Leipzig zu einer eigenständigen Wohn- und Geschäftsstraße mit Läden und Büros. Das Gebäude Nummer 16 befindet sich im vorderen Bereich der Karl-Liebknecht-Straße, ca. 500 m südlich vom Neuen Rathaus. Im unmittelbaren Umfeld dieses Objektes haben sich bereits zahlreiche Einzelhandelsgeschäfte der verschiedensten Branchen angesiedelt. Die Karl-Liebknecht-Straße wird von diversen Straßenbahnlinien frequentiert, so dass ein optimaler Anschluss den ÖPNV gewährleistet ist.
Fußweg zu öffentlichen Verkehrsmitteln1 Minuten
Fahrtzeit zum nächsten Hauptbahnhof6 Minuten
Fahrtzeit zur nächsten Autobahn10 Minuten
Fahrzeit zum nächsten Flughafen23 Minuten

Karte

Die Fläche

Gesamtfläche des Objektes:
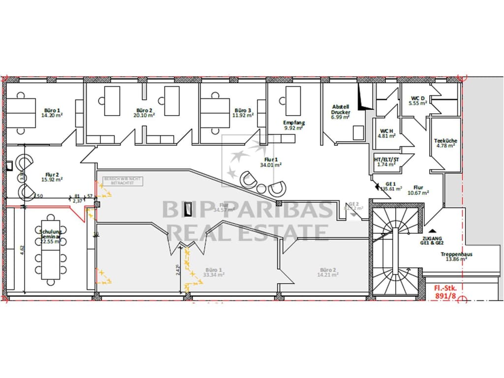
2.526,65 m², davon bis zu 162,92 m² verfügbar
Gesamtfläche des Objektes2.526,65 m², davon 162,92 m² verfügbar
1. OG Bürofläche 162,92 m² 162,92 m² 13,00 €
Bürofläche, Gebäude 1, 1. OG, 162,92 m², 13,00 €

Information zur Provision

ProvisionNein
Provisionshöheprovisionsfrei

Provisionshinweis

Wir weisen Sie darauf hin, dass Ihnen bei erfolgreichem Abschluss eines Mietvertrages eine Provision berechnet wird - es sei denn, das Objekt wurde Ihnen vorab ausdrücklich provisionsfrei angeboten. Bitte beachten Sie unsere AGB (https://www.realestate.bnpparibas.de/agb/bnppre-gmbh).