Büro in Leipzig mieten 632,50 m2 ab 9,50 €/m2 (BNPPRE L10827)

04129 Leipzig

  • L10827

    Objekt-ID

  • Provisionsfrei

  • 9.50 €

    Mietpreis pro m2/Monat

  • 632.50 m2

    Bürofläche

  • 150.00 m2

    Teilbar ab

  • Nach Absprache

    Verfügbarkeit

Ihr Ansprechpartner

[object Object]

Laura Krämer

Tel: +49 341 71188-25

Personenaufzug

Fakten

Büromarktzone3.1 Leipzig-Nord / Eutritzsch

Objekt

ObjektartBürohaus
Baujahr1915

Objektbeschreibung

L10827 Der Gebäudekomplex besteht aus einem viergeschossigen Bürohaus mit zwei angebauten Produktionshallen. Die ehemalig als Eisenbau- und Eisengießerei genutzte Fabrikanlage zeugt von den der Industrialisierung des Leipziger Nordens. Das sanierte Bürogebäude besticht durch seine besondere Fassade im gebäudetypischen, roten Klinker und einer Verglasung im Bereich des Treppenhauses über alle Stockwerke hinweg. Heute bietet das Bürohaus moderne und gut ausgestattete Räumlichkeiten.

Lage

Karte

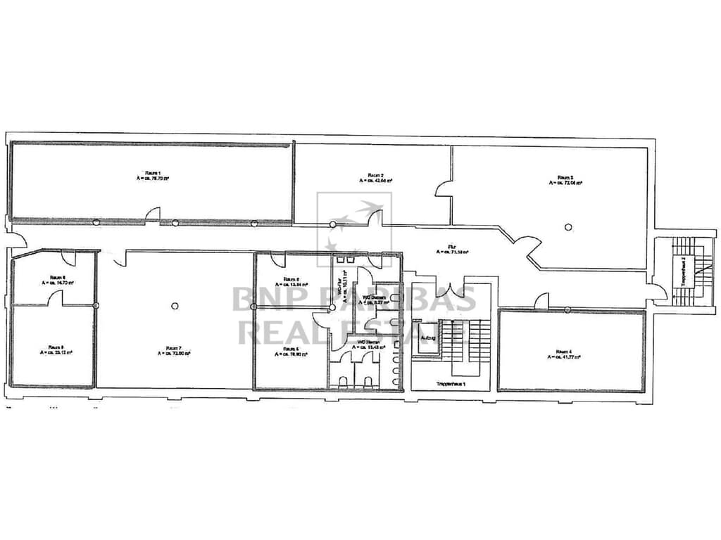
Die Fläche

Gesamtfläche des Objektes:
3.632,50 m², davon bis zu 632,50 m² verfügbar
Gesamtfläche des Objektes3.632,50 m², davon 632,50 m² verfügbar

Energieausweis für dieses Objekt

Dieses Gebäude steht unter Denkmalschutz und ist von der Ausweispflicht ausgenommen.

Information zur Provision

ProvisionNein

Provisionshinweis

Wir weisen Sie darauf hin, dass Ihnen bei erfolgreichem Abschluss eines Mietvertrages eine Provision berechnet wird - es sei denn, das Objekt wurde Ihnen vorab ausdrücklich provisionsfrei angeboten. Bitte beachten Sie unsere AGB (https://www.realestate.bnpparibas.de/agb/bnppre-gmbh).