Büro in Köln mieten 2.076,00 m2 ab 16,00 €/m2 (BNPPRE K4693)

Attraktive Büroflächen auf dem Hohenstaufenring

50674 Köln

  • K4693

    Objekt-ID

  • 16.00 €

    Mietpreis pro m2/Monat

  • 5,20 €

    Nebenkosten pro m2/Monat

  • 2,076.00 m2

    Bürofläche

  • 330.00 m2

    Teilbar ab

  • nach Vereinbarung

    Verfügbarkeit

Ihr Ansprechpartner

[object Object]

Fabian Ehrhardt

Tel: +49 221 934633-18

Personenaufzug

Fakten

Büromarktzone1.1 City
Verkabelungvorhanden
Sonnen-/Blendschutzaußenliegend manuell
Kühlung/ LüftungVollklimatisierung, Splitgerät
Preis pro Parkfläche120,00 €/Monat

Objekt

ObjektartBüro-/Geschäftshaus
Baujahr1961
Deckenhöhe2,63 - 2,67 m
Achsmaß1,55 m

Objektbeschreibung

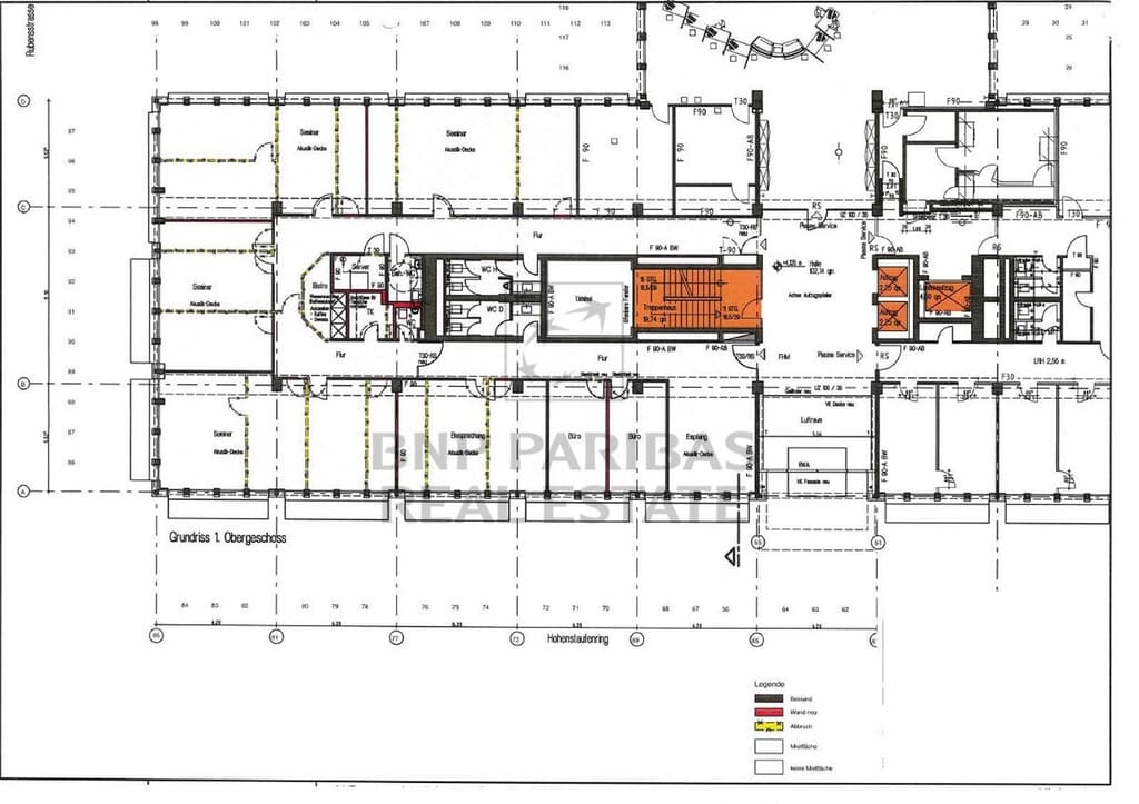
Das 7-geschossige Bürohaus verfügt über einen repräsentativen Eingangsbereich, in dem ein Fassadeneinschnitt über fünf Geschosse vorgenommen wurde. Durch die großzügigen Glasflächen und Lufträume entsteht ein einladendes Entré, welches mit einem besetzten Empfang für alle Mieter des Hauses ausgestattet ist. Sämtliche Büroflächen des Gebäudes werden wahlweise über das Treppenhaus oder den zwei Personenaufzügen erschlossen. Die Büroflächen sind entsprechend der Grundrisse mit großzügigen Arbeitsräumen, teils Open-Space-Bereichen, Konferenzräumen, getrennten WC-Einheiten, offener Teeküche und Serverräum ausgestattet. Im 6. Obergeschoss genießen die Mieter zudem eine repräsentative Aussicht mit Blick auf den Dom.

Lage

Das Büroobjekt befindet sich am renommierten Hohenstaufenring zwischen dem Rudolfplatz und dem Barbarossaplatz. Die Immobilie befindet sich in der linksrheinischen Büromarktzone City, diese wird einerseits durch den Rhein und andererseits durch den Grüngürtel begrenzt. Durch den charakteristischen Aufbau der Stadt durch die Ringe und die sternförmigen Ausfallstraßen sind einzelne Stadtviertel entstanden, wie das Banken- und Versicherungsviertel sowie das Belgische Viertel. Bedeutende Mikrostandorte sind die Bereiche Kölner Dom, Hauptbahnhof, Neumarkt, MediaPark, der Ring und das Umfeld der Ringe. Die Anbindung an den ÖPNV ist in der City durch zahlreiche U- und Straßenbahnlinien, S-Bahnhöfe sowie Buslinien als gut zu bezeichnen. Der Kölner Autobahnring kann zügig über diverse Ausfallstraßen sowie die verschiedenen Rheinbrücken angefahren werden. Zahlreiche Restaurants, Bistros, Imbisse, etc. sowie Geschäfte des täglichen Bedarfs befinden sich in unmittelbarer Umgebung.
Fußweg zu öffentlichen Verkehrsmitteln1 Minuten
Fahrtzeit zum nächsten Hauptbahnhof8 Minuten
Fahrtzeit zur nächsten Autobahn10 Minuten
Fahrzeit zum nächsten Flughafen20 Minuten

Karte

Die Fläche

Gesamtfläche des Objektes:
11.197,00 m², davon bis zu 2.076,00 m² verfügbar
Gesamtfläche des Objektes11.197,00 m², davon 2.076,00 m² verfügbar

Energieausweis für dieses Objekt

AusweistypVerbrauchsausweis
Wesentliche EnergieträgerFernwärme
Stromverbrauchskennwert48,00 kWh/(m²*a)
Heizenergieverbrauchskennwert161,00 kWh/(m²*a)

Information zur Provision

ProvisionJa
Provisionshöhesiehe Sonstiges

Provisionshinweis

Wir weisen Sie darauf hin, dass Ihnen bei erfolgreichem Abschluss eines Mietvertrages eine Provision berechnet wird - es sei denn, das Objekt wurde Ihnen vorab ausdrücklich provisionsfrei angeboten. Bitte beachten Sie unsere AGB (https://www.realestate.bnpparibas.de/agb/bnppre-gmbh).