Büro in Köln mieten 6.766,00 m2 (BNPPRE K599)

Attraktive und hochmoderne Büro- und Sonderflächen im MediaPark

50670 Köln

  • K599

    Objekt-ID

  • Preis auf Anfrage

  • 6,50 €

    Nebenkosten pro m2/Monat

  • 6,766.00 m2

    Bürofläche

  • 87.00 m2

    Teilbar ab

  • nach Vereinbarung

    Verfügbarkeit

Ihr Ansprechpartner

[object Object]

Fabian Ehrhardt

Tel: +49 221 934633-18

Personenaufzug

Fakten

Büromarktzone1.1 City
VerkabelungsortHohlraum-Doppelboden, Bodentank
Verkabelungvorhanden
Sonnen-/Blendschutzaußenliegend elektrisch
ZugangskontrolleGegensprechanlage, videoüberwacht
Kühlung/ LüftungBe-/Entlüftung mit Kühlung
Preis pro Parkfläche120,00 €/Monat

Objekt

ObjektartBürohaus
Baujahr1994
Modernisierung2012
Deckenhöhe2,75 - 3,25 m
Achsmaß1,90 m

Objektbeschreibung

Die ansprechende Architektur des 1994 erbauten Bürogebäudes, verbindet hochwertige Materialien, transparente Gebäudestrukturen und einen lichtspendenden Atriumhof und öffnet sich zum Park, Platz und See mit einer raumhohen Glasfassade. Eine 3-Scheiben Isolierverglasung mit einem U-Wert von 0,7 und einem Schalldämmmaß von 50 dB sorgen für ein ruhiges Arbeiten in der Kölner Innenstadt. Die Einbeziehung von Außen- und Innenraum wird durch umlaufende Balkone im Kern sowie aufwändig begrünte Dachflächen erreicht.

Lage

Die Immobilie befindet sich in der linksrheinischen Büromarktzone City, diese wird einerseits durch den Rhein und andererseits durch den Grüngürtel begrenzt. Durch den charakteristischen Aufbau der Stadt durch die Ringe und die sternförmigen Ausfallstraßen sind einzelne Stadtviertel entstanden, wie das Banken- und Versicherungsviertel sowie das Belgische Viertel. Bedeutende Mikrostandorte sind die Bereiche Kölner Dom, Hauptbahnhof, Neumarkt, MediaPark, der Ring und das Umfeld der Ringe. Die Anbindung an den ÖPNV ist in der City durch zahlreiche U- und Straßenbahnlinien, S-Bahnhöfe sowie Buslinien als gut zu bezeichnen. Der Kölner Autobahnring kann zügig über diverse Ausfallstraßen sowie die verschiedenen Rheinbrücken angefahren werden.
Fußweg zu öffentlichen Verkehrsmitteln2 Minuten
Fahrtzeit zum nächsten Hauptbahnhof4 Minuten
Fahrtzeit zur nächsten Autobahn4 Minuten
Fahrzeit zum nächsten Flughafen20 Minuten

Karte

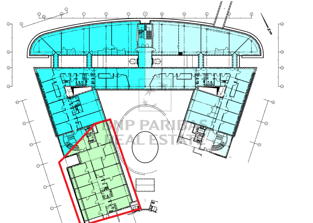
Die Fläche

Gesamtfläche des Objektes:
31.562,00 m², davon bis zu 6.840,00 m² verfügbar
Gesamtfläche des Objektes31.562,00 m², davon 6.840,00 m² verfügbar

Energieausweis für dieses Objekt

AusweistypVerbrauchsausweis
Wesentliche EnergieträgerFern-/Nahwärme
Endenergieverbrauch Strom122,00 kWh/(m²*a)
Endenergieverbrauch Wärme94,00 kWh/(m²*a)

Information zur Provision

ProvisionJa
Provisionshöhesiehe Sonstiges

Provisionshinweis

Wir weisen Sie darauf hin, dass Ihnen bei erfolgreichem Abschluss eines Mietvertrages eine Provision berechnet wird - es sei denn, das Objekt wurde Ihnen vorab ausdrücklich provisionsfrei angeboten. Bitte beachten Sie unsere AGB (https://www.realestate.bnpparibas.de/agb/bnppre-gmbh).