Büro in Köln mieten 2.207,00 m2 ab 17,50 €/m2 (BNPPRE K81)

hochwertige Büro – und Praxisflächen im Parkside 172 | Ausbau nach Mieterwunsch!

50968 Köln

  • K81

    Objekt-ID

  • 17.50 €

    Mietpreis pro m2/Monat

  • 3,90 €

    Nebenkosten pro m2/Monat

  • 2,207.00 m2

    Bürofläche

  • 297.00 m2

    Teilbar ab

  • kurzfristig

    Verfügbarkeit

Ihr Ansprechpartner

[object Object]

Fabian Ehrhardt

Tel: +49 221 934633-18

Barrierefrei
Personenaufzug

Fakten

Büromarktzone2.3 Bayenthal/Marienburg
VerkabelungsortFensterbank-Kabelkanäle
VerkabelungCat 7, Glasfaserkabel/High-Speed-Anbindung
Sonnen-/Blendschutzaußenliegend elektrisch
Kühlung/ LüftungBe-/Entlüftung ohne Kühlung, Vollklimatisierung

Objekt

ObjektartBüro-/Geschäftshaus
Baujahr1992
Deckenhöhe2,90 - 3,00 m lichte Höhe
Achsmaß1,35 m

Objektbeschreibung

Bei dem Objekt handelt es sich um ein modernes, sechsgeschossiges Büro- und Geschäftshaus mit hochwertiger Glasfassade und klarer Architektur. Das Gebäude bietet durch großzügige Fensterflächen und eine repräsentative Eingangszone ein zeitgemäßes, professionelles Arbeitsumfeld in prominenter Lage an der Bonner Straße im Kölner Süden. Der Zugang erfolgt über ein einladendes, modern gestaltetes Foyer mit direkter Anbindung an die Straßenbahnhaltestelle. Das Gebäude ist barrierefrei erschlossen und verfügt über Aufzüge, die einen komfortablen Zugang zu allen Etagen ermöglichen. Die Büroflächen sind in unterschiedlichen Größen verfügbar und werden hochwertig nach Mieterwunsch ausgebaut. In der hauseigenen Tiefgarage stehen ausreichend Stellplätze zur Anmietung zur Verfügung.

Lage

Die Büromarktzone Bayenthal/Marienburg liegt südlich der Kölner City. Dazu gehören neben diesen beiden Stadtteilen Raderberg, Raderthal und Zollstock. Markante Mikrostandorte sind die Rheinuferstraße, Bonner Straße, Lindenallee, Bayenthalgürtel und der Höninger Weg. Bayenthal ist geprägt durch kleinere Altbauten sowie moderne, größere Büroimmobilien, wogegen Marienburg das mondäne Villenviertel Kölns mit prachtvollen Gründerzeithäusern und Jugendstilbauten ist. Auch wenn der Standort keine klassische Bürolage ist, haben sich hier unter anderem Unternehmen wie das Institut der Deutschen Wirtschaft, Deutschlandfunk, Barmer Ersatzkasse, Deutscher Städtetag, IBM sowie zahlreiche Berufsgenossenschaften angesiedelt. Des Weiteren haben viele Autohäuser in Bayenthal ihren Sitz. Die Anbindung durch den öffentlichen Personennahverkehr ist durch die Straßenbahnlinien 6, 12 und 16 sowie durch zahlreiche Buslinien gewährleistet. Der Individualverkehr erreicht die Kölner Innenstadt in kurzer Zeit. Bayenthal/Marienburg zeichnet sich darüber hinaus durch den sehr guten Anschluss an den Kölner Autobahnring (A 4, A 1, A 57, A 59) sowie nach Bonn über die Autobahn A 555 aus.
Fußweg zu öffentlichen Verkehrsmitteln2 Minuten
Fahrtzeit zum nächsten Hauptbahnhof10 Minuten
Fahrtzeit zur nächsten Autobahn5 Minuten
Fahrzeit zum nächsten Flughafen20 Minuten

Karte

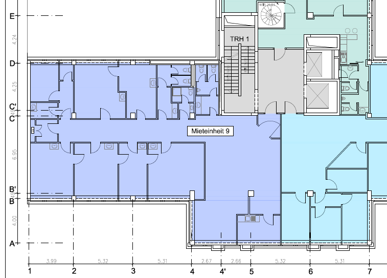
Die Fläche

Gesamtfläche des Objektes:
11.438,00 m², davon bis zu 2.207,00 m² verfügbar
Gesamtfläche des Objektes11.438,00 m², davon 2.207,00 m² verfügbar

Energieausweis für dieses Objekt

AusweistypVerbrauchsausweis
Wesentliche EnergieträgerErdgas H
Stromverbrauchskennwert115,34 kWh/(m²*a)
Heizenergieverbrauchskennwert82,66 kWh/(m²*a)

Information zur Provision

ProvisionJa
Provisionshöheprovisionspflichtig, siehe Sonstiges

Provisionshinweis

Wir weisen Sie darauf hin, dass Ihnen bei erfolgreichem Abschluss eines Mietvertrages eine Provision berechnet wird - es sei denn, das Objekt wurde Ihnen vorab ausdrücklich provisionsfrei angeboten. Bitte beachten Sie unsere AGB (https://www.realestate.bnpparibas.de/agb/bnppre-gmbh).